YAYLADAĞI-ÇABALA'DA *İMARLI* MÜSTAKİL-MERKEZE YAKIN SATILIK ARSA
 Portföy No: 330351
CB ELİT

YAYLADAĞI-ÇABALA'DA *İMARLI* MÜSTAKİL-MERKEZE YAKIN SATILIK ARSA - 330351

Hatay / Yayladağı / Çabala

AÇIKLAMA

COLDWELL BANKER ELİT GAYRİMENKUL'DEN

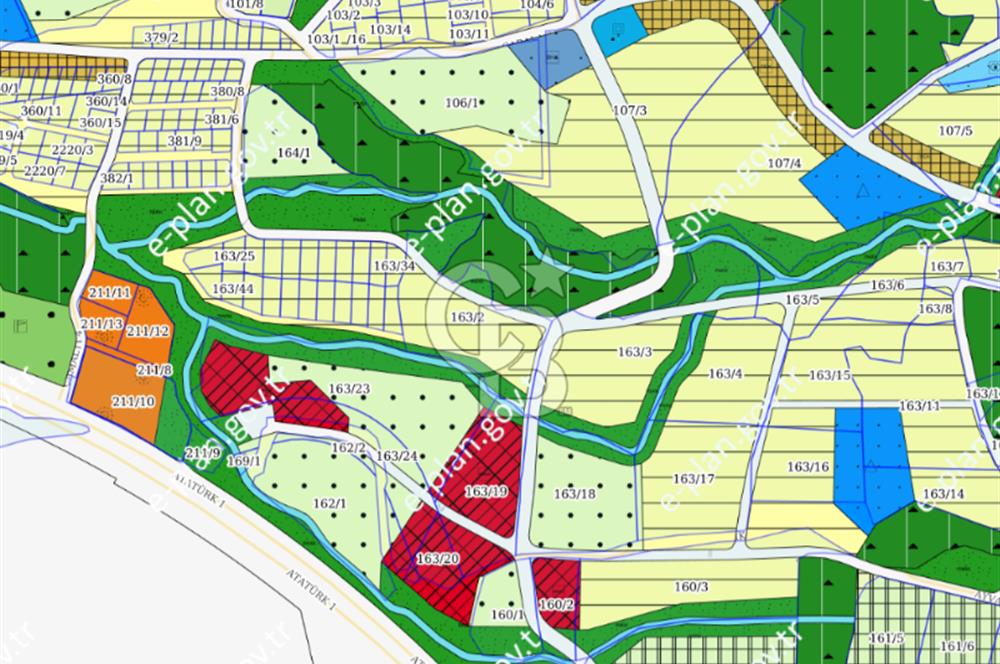
HATAY - YAYLADAĞI - ÇABALA MAHALLESİ - AYVACIK MEVKİİ 'NDE

163 ADA 2 PARSEL - KONUT İMARLI SATILIK ARSA

ARSA & İMAR DURUM BİLGİLERİ:

​TAPU ALANI: 14.227,92 m2

TAKS: 0.25

KAKS (EMSAL): 0.50

KAT ADEDİ: 2 KAT

NİZAM: AYRIK NİZAM

ÖN ÇEKME MESAFESİ: 3 metre

ARKA ÇEKME MESAFESİ: 5 metre

BÖLGE AKTİF GELİŞİM VE YAPILAŞMA SÜRECİNDEDİR.

BU İMAR KOŞULLARIYLA;

​DÜŞÜK YOĞUNLUKLU KONUT PROJELERİ

VİLLA / MÜSTAKİL KONUT YERLEŞİMİ

BUTİK SİTE VEYA ETAPLI PROJE GELİŞTİRMEYE SON DERECE UYGUNDUR.

KONUM & ULAŞIM AVANTAJLARI:

​ANTAKYA - YAYLADAĞI ANA YOLU'NA: 260 m

YAYLADAĞI HÜKÜMET KONAĞI'NA: 300 m

YAYLADAĞI TOKİ Konutları'na: 500 m

YAYLADAĞI İLÇE MERKEZİ'NE: 2 KM

MERKEZİ KURUMLARA YAKINLIĞI SAYESİNDE GELECEK DEĞERİ YÜKSEK, ULAŞIMI RAHAT BİR LOKASYONDA YER ALMAKTADIR.

ÇEVRESEL VE YATIRIM AVANTAJLARI:

​KOMŞU PARSELLER ARSA VASFINDA

BÖLGE İMAR UYGULAMALARI TAMAMLANMIŞ

YERLEŞİME VE PROJEYE HAZIR ÇEVRE

BÜYÜK METRAJLI, TEK PARSEL - MÜSTAKİL TAPU

UZUN VADELİ YATIRIM VE PROJE GELİŞTİRME İÇİN İDEAL

DETAYLI BİLGİ İÇİN İLETİŞİME GEÇEBİLİRSİNİZ.

YETKİLİ GAYRİMENKUL DANIŞMANI

CANBERK US - 05523163131

Konum Türkiye , , Hatay , Yayladağı , Çabala
Tapu Durumu Müstakil Tapu
Portföy Kategorisi Ada
Fiyat 15.650.000 ₺
Metre Kare (Net) 14.227,92
Krediye Uygun Evet
Takasa Uygun Hayır
İmar Durumu Konut İmarlı
Tapu Durumu Müstakil Parsel
KAKS (Emsal) 0.50
Gabari 6.50

Görüntülenme Sayısı

108

* İlana teklif verebilir, görme talebinde bulunabilir, danışman ile iletişime geçebilirsiniz.

Teklif Ver Görme Talebi Beni Arayın

MUHİT ÖZELLİKLERİ

  • Sağlık Merkezi
  • Lise
  • Ortaokul
  • İlkokul
  • Pazar Yeri
  • Hastane
  • Sağlık Ocağı
  • Şehir Merkezi
  • Polis Merkezi
  • Cami
  • Benzin İstasyonu
  • Cadde
  • Park
  • Otoyol
  • Yayla

ULAŞIM ÖZELLİKLERİ

  • Otobüs Durağı
  • Minibüs
  • Anayol
  • Toplu Taşıma
  • Dolmuş

MANZARA ÖZELLİKLERİ

  • Şehir
  • Doğa

TEKNİK ÖZELLİKLER

  • Doğalgaz
  • Su Hattı
  • Elektrik Hattı
  • Telefon
ELİT

Canberk Us

Danışmanın Diğer Portföyleri