BALIKKESİR AVŞA ADASINDA SATILIK İMARLI ARSA
 Portföy No: 308922
CB KALE

BALIKKESİR AVŞA ADASINDA SATILIK İMARLI ARSA - 308922

Balıkesir / Marmara / Avşa

AÇIKLAMA

YERİMİZ AVŞA ADASINDA OLUP DENİZE 60 METRE MESAFEDEDİR. YAPI RUHSATI ALINMIŞTIR ..İNŞAATA HAZIR

VAZİYETTEDİR. TOPLAMDA 2 ADET ARSAMIZ MEVCUTTUR.

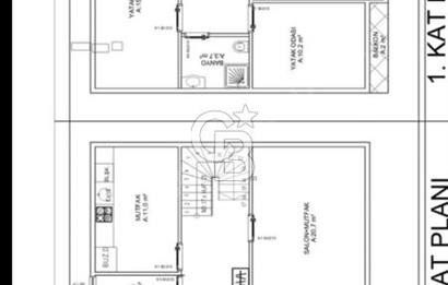
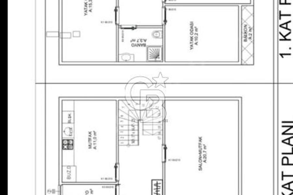
[21:30, 14.09.2025] 9008 parsel arsamız 140 metre net .56 metre birinci kat 56 ikinci kat toplam .112 metre net kullanımı olacak.oda sayısı alt kat kapalı mutfak ,1 salon ,1 WC banyo .84 metrede bahçesi olacak.isteyene veranda da yapılabilir.

9009 parsel arsamizda.136,72 metre .projesi diğeriyle birebir aynıdır sadece metrekare de ufak degisiklik var .bu parselimizin bahçesi 82 metredir .arsalarimizin denize uzaklığı 60 metredir .60 metre mesafede olan deniz kum plajdir yani denize girilebilen mevkidedir .ayrıca yine 100 metre mesafede başka plajda vardır .Avşa adası merkezine 2 km.dir.2-3 dakika mesafede market vardır .minibüs yolu vardır .merkeze ve adanın geneline gitmek için dolmuşlar vardır .

[21:31, 14.09.2025] Arsalarimiz mevkii olarak Avşa adası deniz mahllesi ,kanburtarla mevkii diye geçer .adanın en nezih yerlerinden biridir .çok hızlı değer kazanan bir yerdir .

[21:31, 14.09.2025] Çok hızlı değer kazanan bir mevkide

HER BİR Proje 3+1 oda 2 banyo WC 1 kapalı mutfak şeklindedir VİLLA OLARAKTA YAPIP TESLİM EDEBİLİRİZ.

3+1 BİTMİŞ VİLLA OLARAK FİYATIMIZ 6.500.000TL DİR

Konum Türkiye , , Balıkesir , Marmara , Avşa
Tapu Durumu Müstakil Tapu
Portföy Kategorisi Ada
Fiyat 2.750.000 ₺
Metre Kare (Net) 140
Krediye Uygun Hayır
Takasa Uygun Hayır
Tapu Durumu Müstakil Parsel

Görüntülenme Sayısı

146

* İlana teklif verebilir, görme talebinde bulunabilir, danışman ile iletişime geçebilirsiniz.

Teklif Ver Görme Talebi Beni Arayın
KALE

Gül Deniz Soylu

Danışmanın Diğer Portföyleri